городской образ жизни
в загородной квартире
жк элита
ЖК Элита – камерный жилой комплекс, на закрытой территории с высоким уровнем приватности. Количество квартир ограничено, в доме их всего пятнадцать.

Во дворе организованы различные зоны отдыха, где жители со схожими интересами смогут быстро наладить добрососедские связи. Все это положительно повлияет на качество жизни, делая ее гораздо более комфортной и наполненной новыми, а главное интересными возможностями.

Проживание здесь позволит ощутить чувство безопасности и защищенности, в более спокойной и расслабленной атмосфере, без суеты.
БУДЬТЕ СПОКОЙНЫ ЗА то,
что окружает вашу семью
архите
ктура
архитектура
Архитектура и благоустройство
жилого комплекса элита
Спальные комнаты выходят на южную дворовую сторону комплекса. Такое расположение исключает попадание шумов от Байкальского тракта и обеспечивает нормируемый уровень инсоляции в квартире.
кварт
ирогр
афия
подбор квартиры
Пожалуйста, заполните форму или нажмите на
интересующую квартиру, чтобы узнать больше
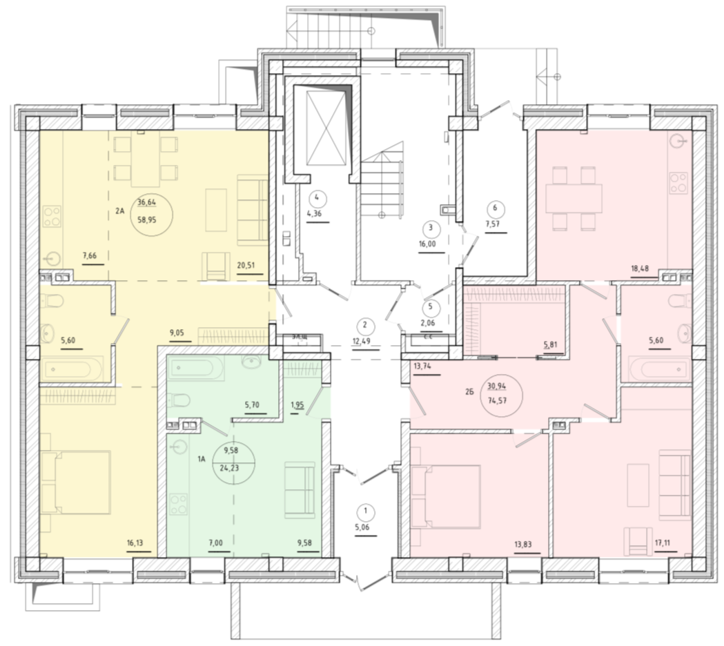
2-4 этаж
КВАРТИРОГРАФИЯ
кварт
ирогр
афия
подбор квартиры
Пожалуйста, заполните форму или нажмите на
интересующую квартиру, чтобы узнать больше
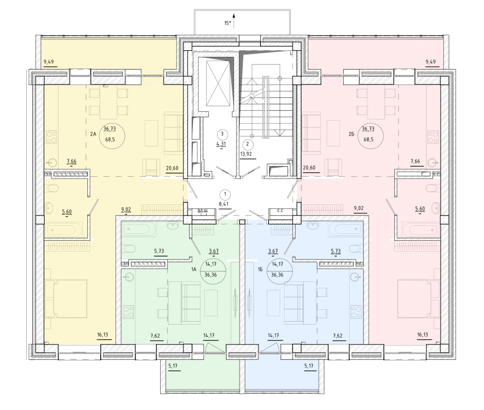
1 этаж
КВАРТИРОГРАФИЯ
Евро-2
Сдана: 3 кв. 2024 г.
Высота потолков: 3 м
Общая: 57,7 м2
Жилая: 36 м2
Кухня: 8,9 м2
Санузел: 5,4 м2
Лоджия: 9,6 м2
квартира евро-2 (кухня гостиная и спальня)
*Указанные параметры в планировках могут отличаться от фактических размеров
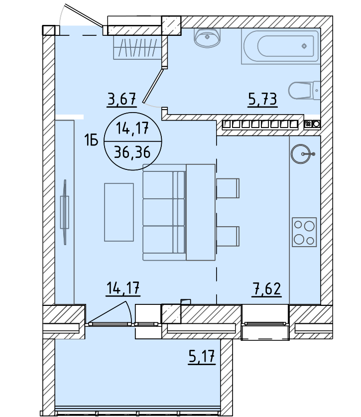
Евро-2
Сдана: 3 кв. 2024 г.
Высота потолков: 3 м
Общая: 57,7 м2
Жилая: 36 м2
Кухня: 8,9 м2
Санузел: 5,4 м2
Лоджия: 9,6 м2
квартира евро-2 (кухня гостиная и спальня)
*Указанные параметры в планировках могут отличаться от фактических размеров
студия
Сдана: 3 кв. 2024 г.
Высота потолков: 3 м
Общая: 30,1 м2
Жилая: 13,1 м2
Кухня: 7,7 м2
Санузел: 5,7 м2
Лоджия: 5,2 м2
квартира студия (общая жилая комната)
*Указанные параметры в планировках могут отличаться от фактических размеров
студия
Сдана: 3 кв. 2024 г.
Высота потолков: 3 м
Общая: 30,1 м2
Жилая: 13,1 м2
Кухня: 7,7 м2
Санузел: 5,7 м2
Лоджия: 5,2 м2
квартира студия (общая жилая комната)
*Указанные параметры в планировках могут отличаться от фактических размеров
студия
Сдана: 3 кв. 2024 г.
Высота потолков: 3 м
Общая: 24 м2
Жилая: 12,6 м2
Кухня: 5,9 м2
Санузел: 5,5 м2
квартира студия (общая жилая комната)
*Указанные параметры в планировках могут отличаться от фактических размеров
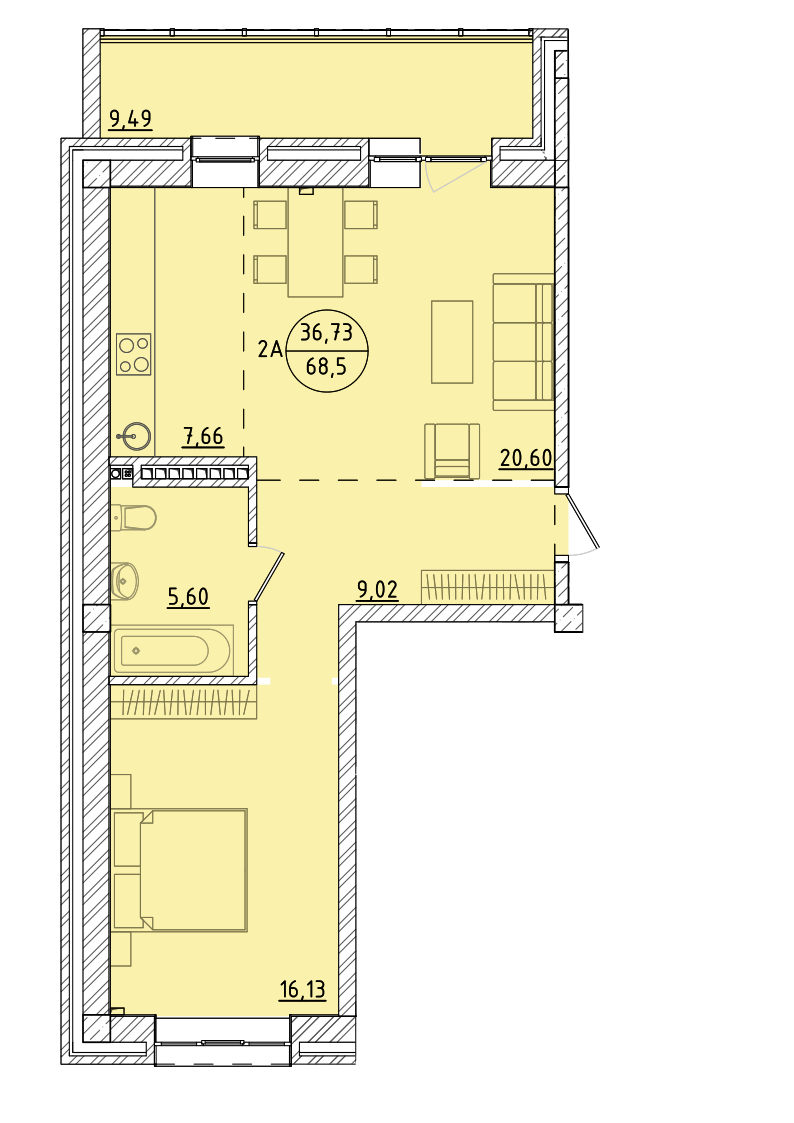
Евро-2
Сдана: 3 кв. 2024 г.
Высота потолков: 3 м
Общая: 58,3 м2
Жилая: 34,4 м2
Кухня: 8,8 м2
Санузел: 5,6 м2
квартира евро-2 (кухня гостиная и спальня)
*Указанные параметры в планировках могут отличаться от фактических размеров
Сдана: 3 кв. 2024 г.
Высота потолков: 3 м
Общая: 75,4 м2
Жилая: 61,3 м2
Санузел: 5,7 м2
квартира 3-комнат. (свободная планировка)
*Указанные параметры в планировках могут отличаться от фактических размеров
3 комнаты
Собственное пространство
для комфортной жизни
Низкая плотность застройки, две группы из трех блокированных секций по четыре этажа, создает комфортную и сомасштабную для человека среду проживания. На каждом этаже расположены всего четыре квартиры.
комфорт в деталях
Остекленные входные группы обеспечивают естественным освещением коридоры и лестнично-лифтовый холл, а внутренние интерьеры создают атмосферу уюта.
входные группы, подъезды и лестничный марш в жк элита
уДОБНОЕ РАСПОЛОЖЕНИЕ
ЖК ЭЛИТА В 5 МИНУТАХ
ЕЗДЫ ОТ ГОРОДА
Природа
Ближайшая территория богата не только количеством деревьев и красивыми газонами, но и заливом Ангары.
Образование
Рядом с ЖК Элита расположено современное учебное заведение - школа “Точка Будущего”.
Покупки и АЗС
В нескольких минутах езды от Вашего будущего дома находится торговый центр Nova Dacha, а также АЗС.
ЖК Элита - воплощение комфорта и многолетней экспертности
Наслаждайтесь свежим воздухом, солнцем и комфортным расположением необходимой инфраструктуры
КОМФОРТНЫЙ ЕСТЕСТВЕННЫЙ УРОВЕНЬ ОСВЕЩЕНИЯ ДНЕМ И НОЧЬЮ
Спальные комнаты выходят на южную дворовую сторону комплекса. Такое расположение исключает попадание шумов от Байкальского тракта и обеспечивает нормируемый уровень солнечной инсоляции в квартире.
жилой комплекс элита
жк элита
Добро пожаловать домой
контакты
ОБРАТНАЯ СВЯЗЬ
Офис продаж:
п.Новая Разводная, ул.Западная, 30
Телефон:
Email:
Соц.сети
и мессенджеры
*
*Признаны экстремистскими организациями и запрещены на территории РФ.
СЗ Универсал 2024-2025. © Все права защищены!
ДАННЫЙ САЙТ НОСИТ ИНФОРМАЦИОННЫЙ ХАРАКТЕР И НЕ ЯВЛЯЕТСЯ ПУБЛИЧНОЙ ОФЕРТОЙ
ЗАКАЗАТЬ ОБРАТНЫЙ ЗВОНОК
Пожалуйста, оставьте Ваш номер телефона для связи или позвоните нам напрямую:
+7 (3952) 950-163